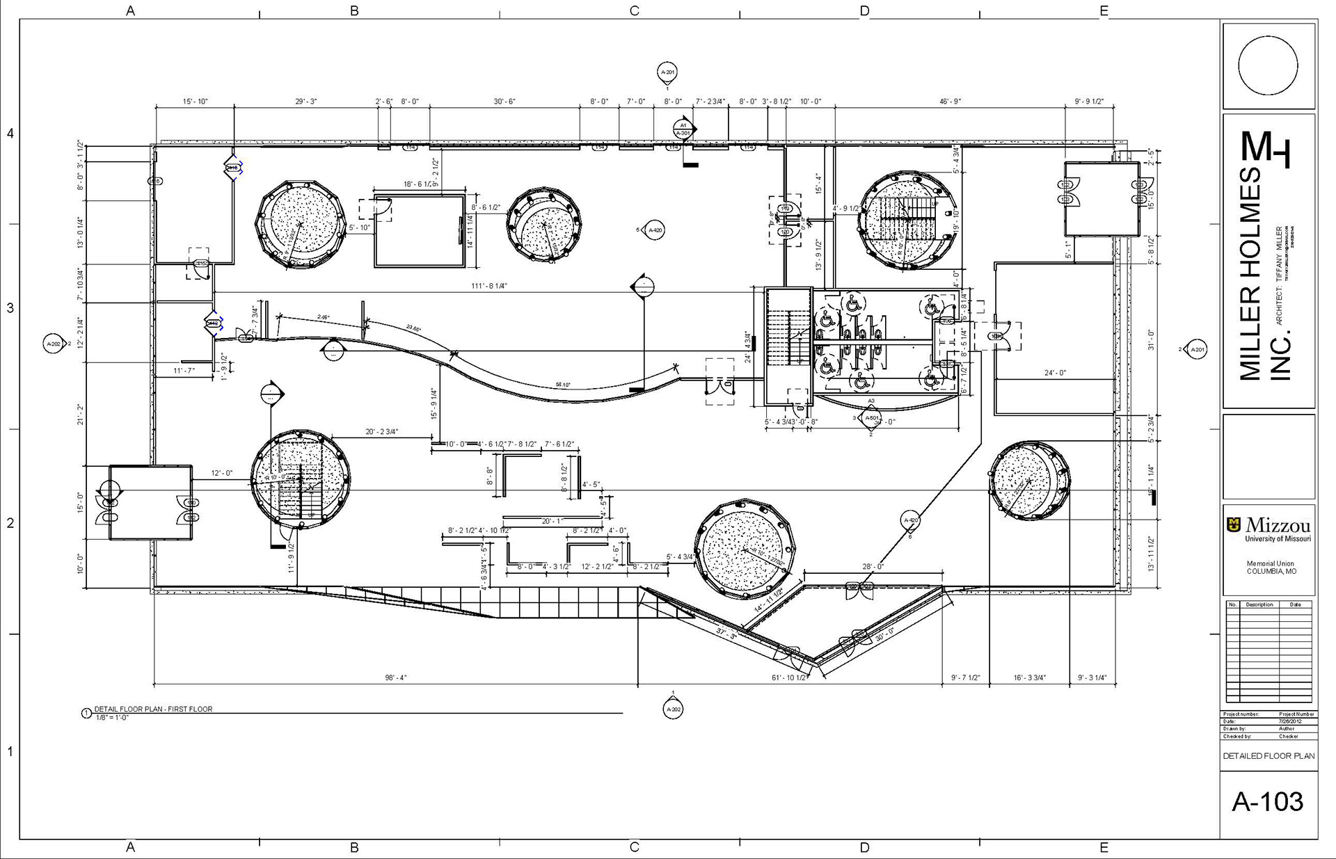
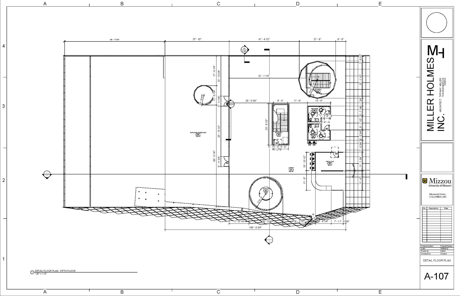
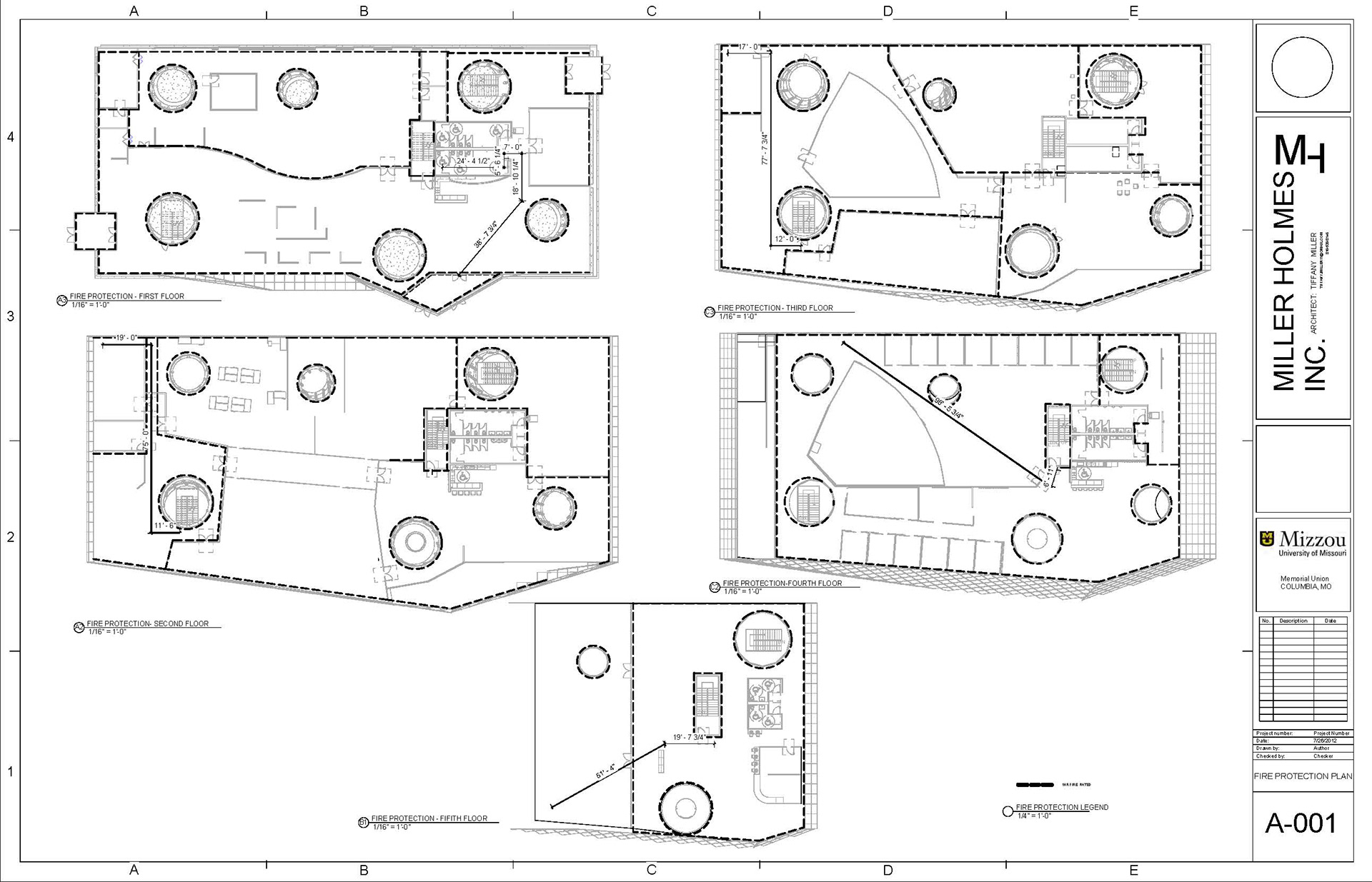
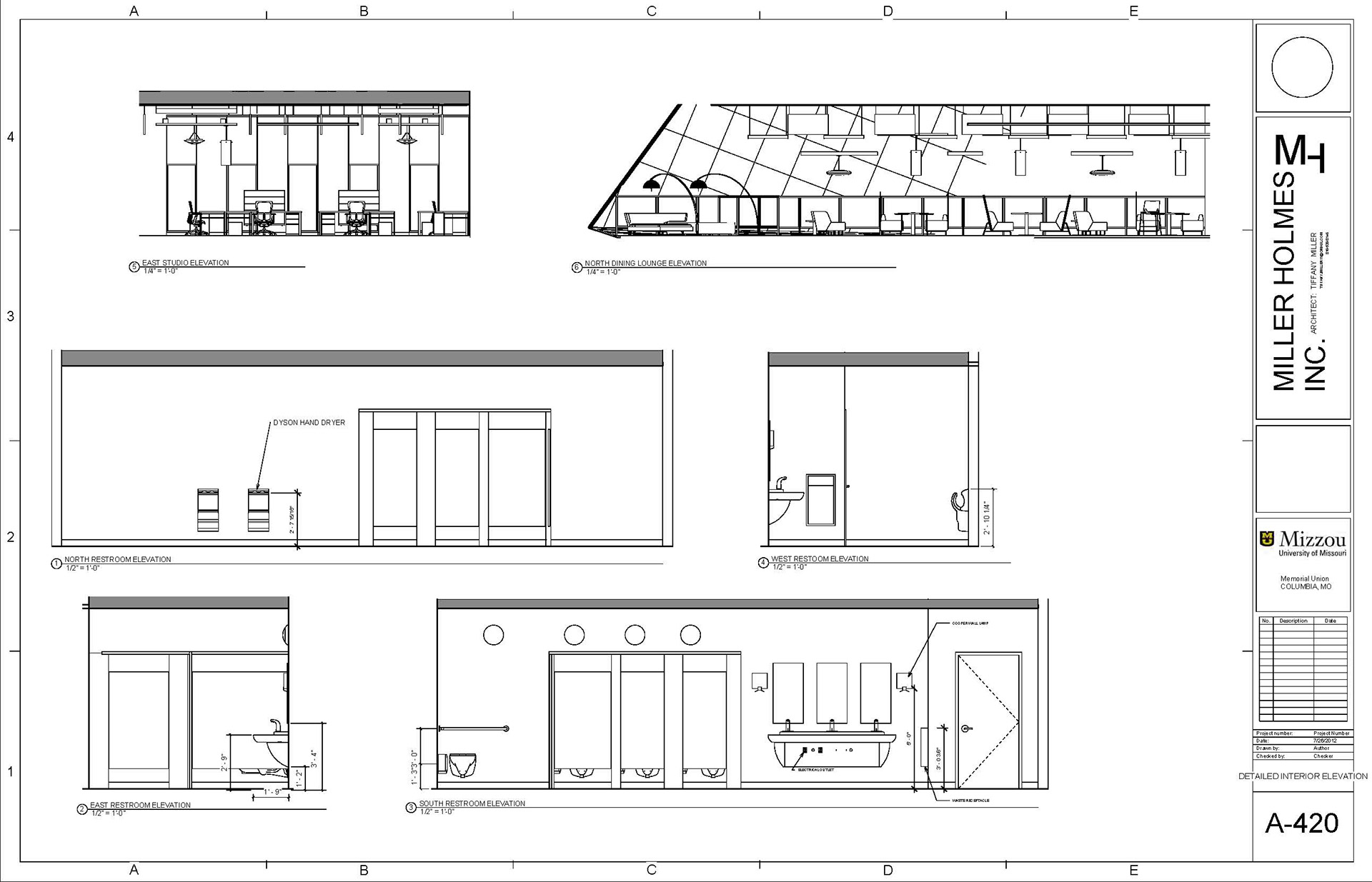
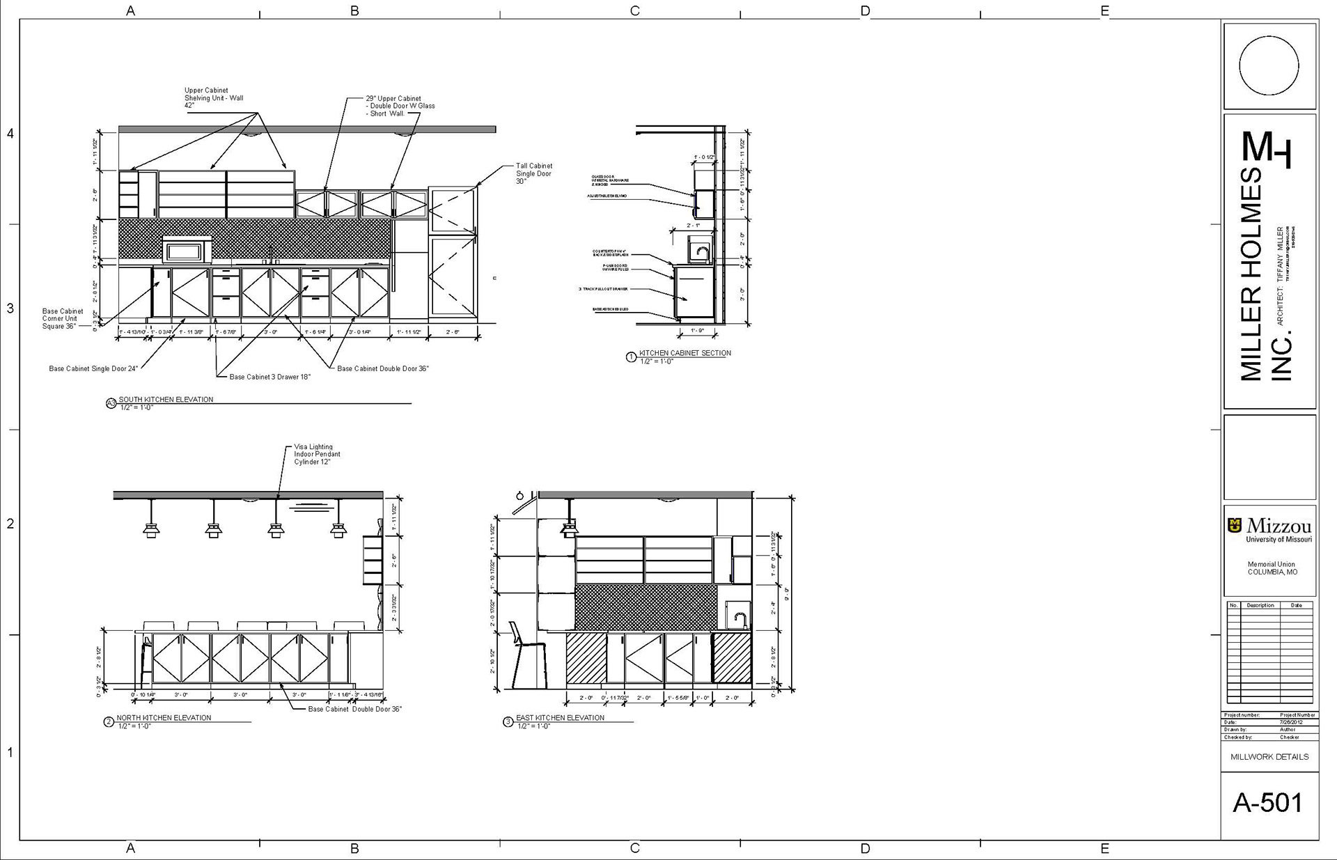
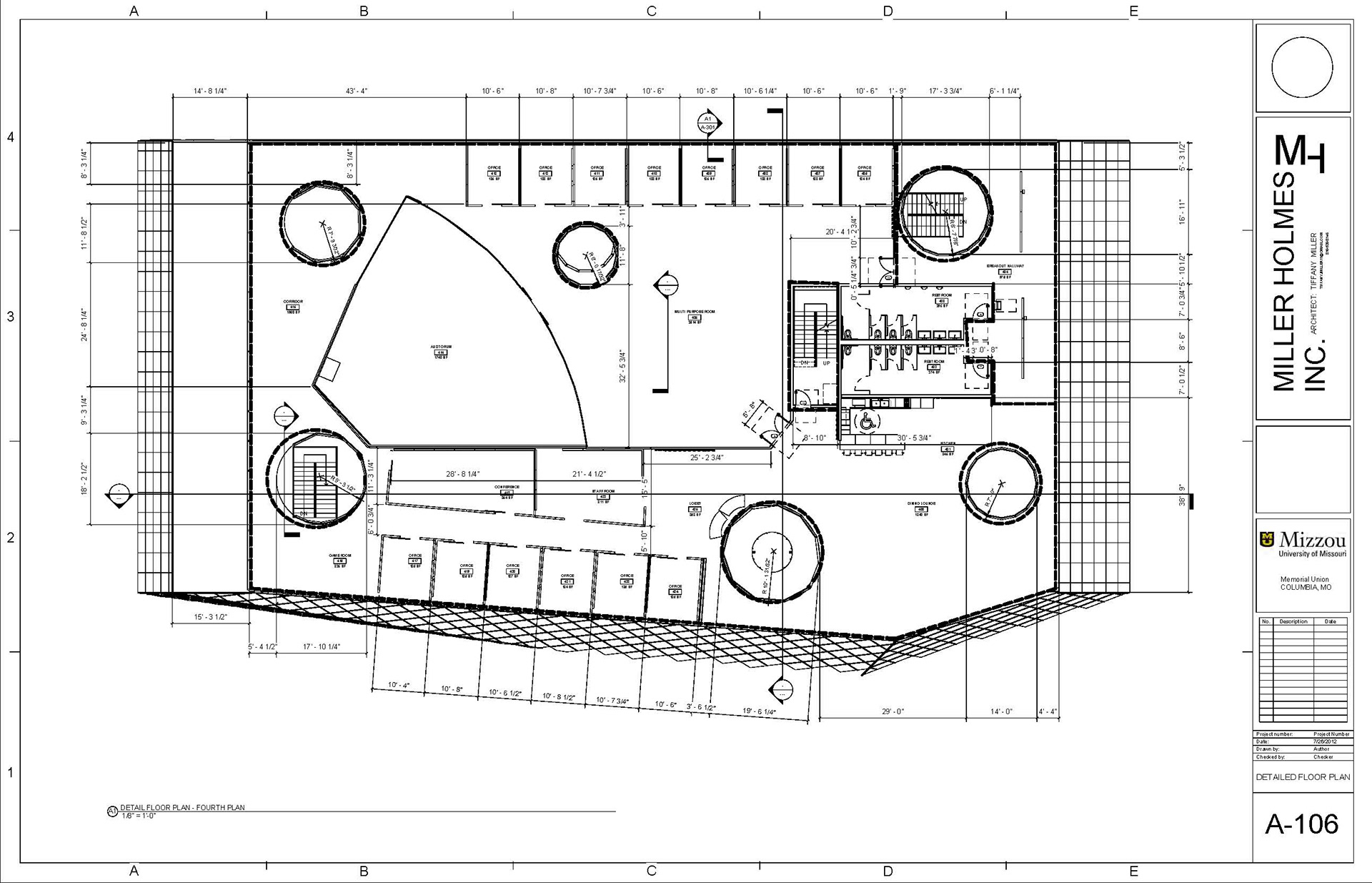
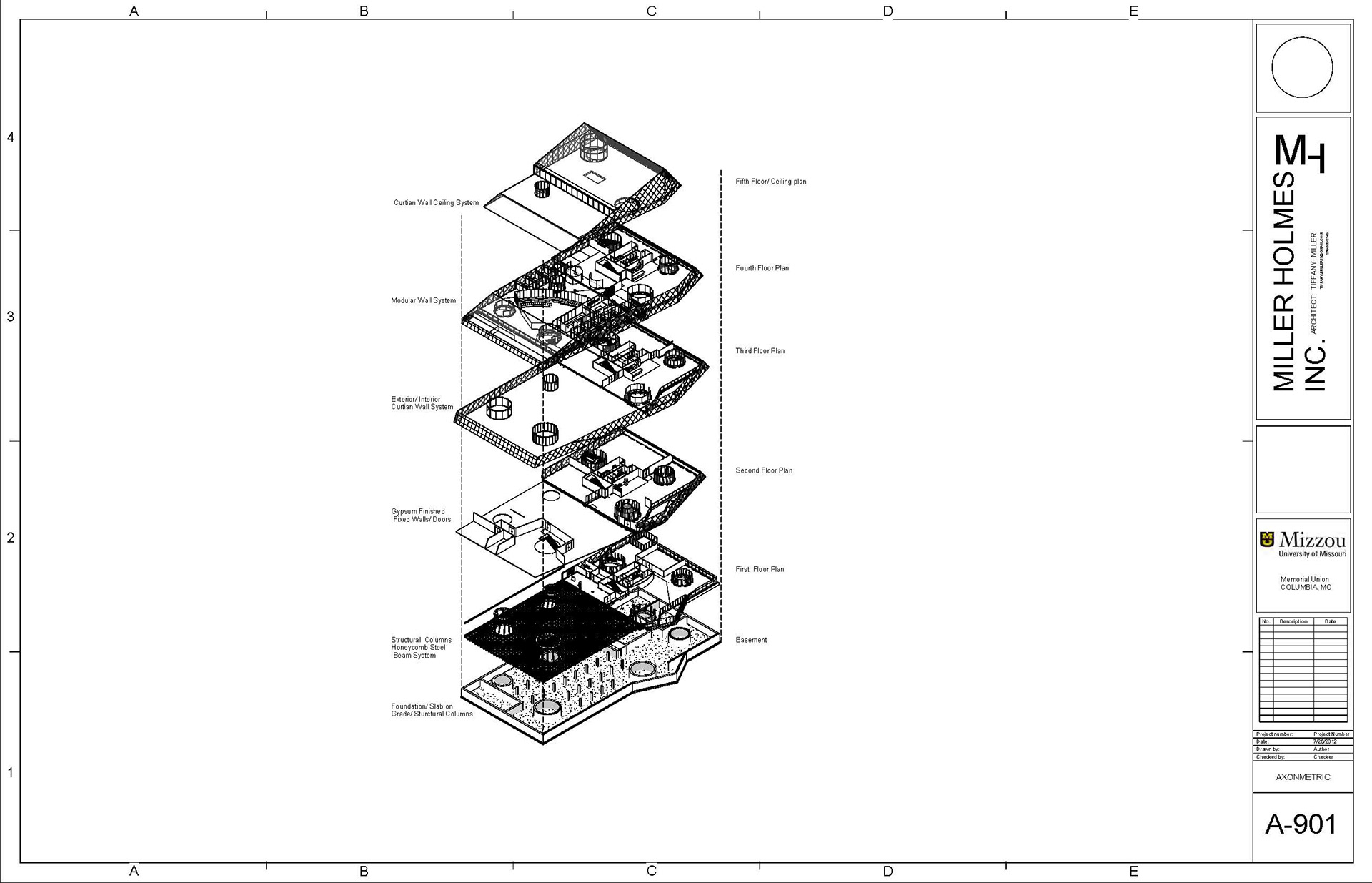
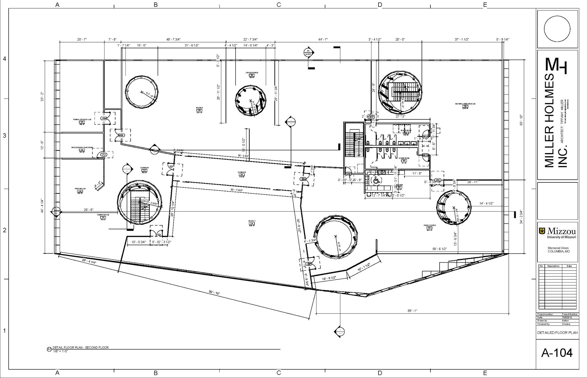
This project was constructed during my undergraduate degree at the University of Missouri. I choose to redesign the architecture and interior design building on the campus as my case study. Documents were made in Revit and AutoCad.
Construction Documents
A complete set of drawings from my School of Architecture and Interior Design project made in Autodesk Revit.